BIM-Integrated Parametric Modelling of Existing Box Girder Bridges Using Point Cloud Data
DOI:
https://doi.org/10.70465/ber.v3i1.75Keywords:
Parametric design, Bridge engineering, BIM, Bridge Design Automation, EfficiencyAbstract
Bridge digitalization increasingly relies on scan-to-BIM techniques to generate accurate as-built models from point-cloud data; however, existing approaches mainly focus on geometric reconstruction or standardized model export, providing limited support for engineer-controlled and editable infrastructure modelling workflows. This paper presents a parametric scan-to-BIM framework for existing box-girder bridges that combines automated geometric extraction with interactive modelling and real-time BIM generation.
The proposed workflow starts from drone-based photogrammetric point-clouds and reconstructs bridge components through parametric modelling, where cross-sectional geometry and longitudinal arrangement are controlled by structured parameters stored in a spreadsheet environment. A live synchronization mechanism enables real-time transfer of the parametric model to the BIM platform, while a dedicated user interface allows non-expert users to generate and verify bridge models through guided input of engineering parameters.
Unlike previous reconstruction-oriented methods, the approach prioritizes controllable modelling, editability, and practical usability, enabling rapid generation of information-rich as-built models suitable for rehabilitation and asset management applications. The results demonstrate reduced manual modelling effort, improved consistency, and enhanced adaptability compared to traditional modelling workflows, supporting the integration of existing bridges into digital-twin-oriented infrastructure management processes.
Downloads
Introduction
Motivation and problem statement
Modeling existing bridges from point-cloud data remains a technically demanding task in digital engineering workflows. Raw scans are often unstructured and contain noise, gaps, and occlusions, which complicates the extraction of reliable geometric information. A primary challenge lies in determining the correct alignment and precise positioning of bridge components, particularly for structures with curved alignments, variable cross-sections, and skewed geometries. Traditional manual modeling approaches used to interpret such complex features are frequently time-consuming, repetitive, and prone to errors, as discussed by Lee et al.1
While drone-based photogrammetry has emerged as a powerful technique for capturing hard-to-reach areas and generating detailed digital representations of existing bridges, efficient methodologies are still required to transform raw point-cloud data into editable, information-rich building information model (BIM) models suitable for engineering analysis, rehabilitation planning, and asset management (e.g., Fang et al.2).
Research gap
Existing scan-to-BIM approaches for bridges often emphasize geometric reconstruction or standardized model export, with limited support for engineer-controlled, editable parametric models that remain consistent across software environments (e.g., Qin et al.3; Abreu et al.4; Schatz & Dömer5; Fang et al.2). Many current workflows focus primarily on surface reconstruction or semi-automated modeling without establishing a structured parameter governance mechanism that maintains consistency between extracted geometry and BIM elements.
Furthermore, existing practices frequently rely on disconnected software environments and manual data re-entry, which interrupts the digital thread and reduces the ability to perform rapid design iteration or engineering updates. There remains a need for integrated workflows that move beyond static reconstruction toward unified parametric environments in which as-built geometry can be governed by engineering parameters and consistently transferred to BIM platforms for downstream applications.
Contributions and novelty
This paper presents a parametric scan-to-BIM framework for existing box-girder bridges that enables the rapid generation of editable and information-rich as-built models. The primary contributions of this research include: Unified multi-tool workflow: Integration of Grasshopper, an Excel-based parameter database, and Rhino.Inside.Revit to maintain a centralized parameter set, where updates propagate through the parametric model and can be transferred to the BIM environment via a live link. Automated geometric feature extraction: Algorithmic extraction of key geometric parameters, such as longitudinal grade and transverse deck slope, from pavement-related point-cloud regions, with performance quantitatively assessed in the validation section. Comprehensive structural modeling: Parametric modeling of superstructure and substructure components, including prestressing cable trajectories and pier/foundation systems, with support for terrain-driven placement where applicable. Structured parameter governance: Implementation of a spreadsheet-based parameter dictionary that governs cross-sectional geometry and longitudinal stationing, ensuring consistency between extracted as-built data and BIM object generation. Practical accessibility: Development of a custom Human UI interface that enables practitioners without advanced programming skills to provide structured inputs, verify geometry through real-time previews, and manage georeferencing while preserving engineering control.
Paper organization
The remainder of this paper is organized as follows. Section 2 reviews related work on scan-to-BIM automation for bridges, parametric and procedural modeling approaches, digital twins for bridge operation and maintenance, and interoperability standards such as Industry Foundation Class 4.3 (IFC 4.3).
Section 3 presents the proposed parametric scan-to-BIM framework, detailing point-cloud preprocessing, filtering and segmentation, alignment and slope extraction, station-based parametric geometry generation, spreadsheet-based parameter governance, BIM object mapping, and the overall automation strategy.
Section 4 describes the case study and the validation results, including geometric accuracy assessment, efficiency evaluation, and robustness analysis.
Section 5 discusses interoperability and practical deployment aspects, with particular attention to BIM parameter integrity and openBIM implications.
Finally, Section 6 concludes the paper and outlines future research directions.
Related Work
Scan-to-BIM automation for bridges
The transformation of point-cloud data into BIMs has been widely recognized as a technically demanding task due to the unstructured nature of raw scans and the presence of noise, gaps, and occlusions. Tang et al.6 provided an early comprehensive review of automated reconstruction challenges, emphasizing the difficulty of reliable element recognition in complex built environments.
In the context of bridge infrastructure, Qin et al.3 proposed an automated parametric reconstruction workflow based on terrestrial laser scanning, demonstrating that alignment and cross-sectional parameters can be extracted to generate structured bridge models. However, the resulting models are primarily reconstruction-oriented and offer limited support for continuous parameter governance once exported. Abreu et al.4 reviewed procedural modeling techniques for scan-to-BIM applications and highlighted the need for improved automation strategies that integrate geometric interpretation with editable BIM representations.
More recently, Schatz and Dömer5 introduced semi-automated generation of IFC bridge models from point clouds for maintenance applications. While their work advances standardized model exchange for asset management, it focuses primarily on IFC-based export rather than interactive parametric control within a unified modeling environment. Fang et al.2 further extended scan-to-BIM pipelines toward simulation-ready digital models, emphasizing automation in geometry reconstruction but not fully addressing engineer-controlled editability across modeling platforms. These studies collectively demonstrate progress in automated reconstruction, yet many workflows still result in models that are static or difficult to adapt once generated.
Parametric/procedural bridge modeling
Parametric modeling environments define geometry through explicit relationships and rule-based logic rather than fixed drafting operations. Sacks et al.7 describe such environments as systems in which modifications to input parameters automatically propagate through dependent components. Boeykens8 explored early integrations between BIM and parametric design tools, establishing procedural generation of bridge components through algorithmic rules.
In the domain of complex bridge systems, Girardet and Boton9 and Boretti et al.10 demonstrated that algorithm-aided design enables rapid evaluation of alternative layouts and optimization of composite bridge geometries. These approaches show the potential of parametric modeling for infrastructure design; however, they typically address design-phase geometry generation rather than the reconstruction of existing as-built bridges from scan data. The integration of scan-derived measurements into rule-based parametric bridge representations remains comparatively less developed.
Digital twins for bridge O&M
The integration of as-built geometric data into bridge lifecycle management is central to digital twin concepts. Gaspari et al.11 demonstrated that combining unmanned aerial vehicle-based light detection and ranging and photogrammetry enables high-density datasets suitable for detailed bridge assessment and monitoring. Vilgertshofer et al.12 introduced TwinGen, which focuses on automated generation of digital twins for bridge operation and maintenance.
While these contributions advance automated data capture and digital twin generation, they often emphasize monitoring, simulation, or lifecycle integration rather than engineer-controlled parametric reconstruction within a BIM-authoring environment. The ability to maintain editable structural parameters while preserving alignment with measured as-built data remains a key requirement for practical rehabilitation workflows.
Interoperability and IFC for infrastructure
Interoperability remains a persistent challenge in infrastructure digitalization. The IFC standard, particularly IFC 4.3, introduces bridge-specific entities intended to support openBIM exchange for transportation infrastructure. Schatz and Dömer5 demonstrated IFC-based bridge model generation for maintenance applications, highlighting the importance of standardized data structures for long-term asset management.
However, IFC-based export workflows often operate as post-processing steps and may not preserve dynamic parametric relationships after model transfer. Alternatively, live-link technologies such as Rhino.Inside.Revit enable direct synchronization between parametric modeling environments and BIM platforms, supporting real-time updates without intermediate file exchange. The trade-off between standardized interoperability and parametric editability represents an ongoing research challenge in the infrastructure of BIM workflows.
Positioning of this work vs. state-of-the-art
The literature demonstrates significant advances in automated bridge reconstruction, procedural modeling, and digital twin generation. However, several limitations remain evident.
First, many scan-to-BIM approaches focus primarily on geometric reconstruction (e.g., Qin et al.3; Fang et al.2), producing models that are structurally accurate but not governed by persistent engineering parameters once exported. Second, IFC-oriented workflows (e.g., Schatz & Dömer5) prioritize standardized exchange but do not necessarily maintain interactive parametric control within the authoring environment. Third, digital twin frameworks (e.g., Vilgertshofer et al.12) emphasize lifecycle integration without fully addressing editable reconstruction of complex internal structural elements.
The present work positions itself at the intersection of these domains by: Integrating scan-derived geometric extraction with a station-based parametric bridge representation governed by a structured spreadsheet parameter database. Maintaining live synchronization between the parametric environment and the BIM platform to preserve editability. Extending modeling beyond external shells to include prestressing cable trajectories and terrain-informed substructure placement. Providing a structured user interface to facilitate practitioner interaction without requiring advanced programming expertise.
By combining automated geometric extraction with centralized parameter governance and real-time BIM synchronization, the proposed framework aims to bridge the gap between reconstruction-oriented scan-to-BIM pipelines and engineer-controlled, editable infrastructure modeling environments.
Methodology: Parametric Scan-to-BIM Framework
The proposed framework transforms raw point-cloud measurements of an existing bridge into an editable BIM representation through a structured sequence of geometric processing, parametric modeling, and BIM object generation.
Unlike conventional scan-to-mesh reconstruction, the workflow produces a rule-based parametric model governed by engineering parameters, ensuring geometric consistency with the measured structure while preserving editability.
The methodology consists of the following stages: Data acquisition and preprocessing Point-cloud filtering and segmentation Alignment definition and stationing Deck slope and altimetry extraction Parametric geometry generation BIM object mapping and synchronization
Data acquisition and point-cloud preprocessing
The modeling process begins with a high-density point-cloud dataset obtained from a drone-based photogrammetric survey of the bridge. The raw data typically consist of multiple LAZ (compressed LAS format for LiDAR point cloud data) files, each representing separate flight paths covering different portions of the structure, with individual file sizes of approximately 50 MB. These files are merged into a single unified point cloud and converted to the E57 format (total size ≈ 900 MB) to ensure compatibility with CloudCompare and the Grasshopper environment.
The merged point cloud may contain up to 100 million points. To balance computational efficiency and geometric fidelity, it is resampled to a uniform grid spacing, selected according to the overall dataset size. For interactive parametric processing, a loading ratio of approximately 30–80% is applied using Volvox.
Duplicate photogrammetric points are then removed prior to geometric fitting to avoid regression bias. No statistical smoothing or interpolation is applied, to preserve the as-built geometric characteristics of the structure.
Point-cloud filtering and segmentation in grasshopper/volvox
Initial preparation is performed in CloudCompare to verify coordinate consistency and organize the dataset for downstream parametric modeling. The objective of this stage is not surface reconstruction but preparation of a stable dataset suitable for geometric interpretation. Consequently, the operations focus on format standardization and removal of clearly irrelevant regions rather than mesh generation.
The processed point cloud is then imported into Grasshopper using the Volvox plug-in, enabling direct manipulation of large point datasets within the parametric modeling environment.
Because the raw point cloud usually includes vegetation and surrounding terrain, a geometric region-of-interest segmentation procedure is applied to isolate the bridge structure, as presented in Fig. 1. First, the longitudinal alignment of the bridge is interactively traced from the as-built plan view, scaled appropriately, and used as the reference curve. Based on this curve, a parametric bounding solid is swept along the alignment to define the spatial corridor of the bridge. Points located outside this volume are removed, isolating the roadway and structural components from the surrounding environment.
Figure 1. Point-cloud filter processing for parametric bridge modeling
After isolating the required data, a sequence of perpendicular sectional planes is generated in Grasshopper. As presented in Fig. 2, using the Cloud|Plane operation (Volvox), the point cloud is sliced along the planes to remove vertically separated objects such as vehicles and environmental artifacts located above and below the structural surface. Therefore, points within ±0.20 m vertical tolerance are retained, and points above and below are removed.
Figure 2. Process of filtering and plane definition
Finally, redundant photogrammetric points are removed by decomposing point coordinates and eliminating duplicate points occupying the same spatial location. No statistical smoothing or interpolation is applied to preserve the original geometric fidelity of the scan.
The resulting dataset contains primarily structural bridge points and serves as the geometric basis for parameter extraction in subsequent modeling steps.
Degree of automation and user inputs
The preprocessing workflow described is semi-automated. Once the alignment curve and bounding volume parameters are defined, filtering and segmentation are executed automatically. However, user input is required to determine the alignment location and verify bounding dimensions to ensure correct interpretation of the as-built geometry. This approach maintains repeatability while preserving engineering judgment during preprocessing.
In the Table 1, the described activities are categorized as manual or automated.
| Step | Manual | Automated |
|---|---|---|
| Alignment tracing | ✔ | |
| Corridor clipping | ✔ | |
| Section slicing | ✔ | |
| Duplicate points removal | ✔ |
Alignment definition and stationing
Longitudinal and transversal orientations are derived directly from deck pavement points using a regression-based geometric approach. After duplicate removal, a least-squares best-fit line is computed through the filtered deck surface points, as shown in Fig. 3. This line represents the dominant longitudinal trend of the pavement of geometry and inherently determines the local rotation of the bridge relative to the global coordinate system.
Figure 3. Process of fit line
D regression line (orthogonal least squares)
Given a set of points , the best-fit line is estimated using an orthogonal least-squares approach, which minimizes the sum of squared perpendicular distances from the points to the line.
First, the centroid of the dataset is computed:
The direction vector of the regression line is obtained as the principal eigenvector of the covariance matrix of the centered points.
The resulting regression line is expressed parametrically as
This formulation corresponds to a total least-squares solution and is equivalent to extracting the first principal component of the point set.
After defining the transversal orientation of each section based on the fitted line, the alignment altimetry is determined as follows: Each station plane is rotated by the angle about the vertical axis to ensure that sectional frames are perpendicular to the measured bridge axis rather than the nominal alignment. This guarantees consistency between the parametric coordinate system and the as-built orientation. To extract elevation values, a vertical reference surface is constructed by extruding the alignment curve in the global Z-direction (Fig. 4). The intersection between the fitted deck line and the vertical surface produces a spatial curve representing deck elevation along chainage. Elevation values are sampled from the curve at predefined station locations, forming the longitudinal elevation profile of the bridge (Fig. 5). Because the procedure is based on least-squares regression rather than interpolation of individual points, it mitigates local noise effects while preserving the global geometric trend.
Figure 4. Process of determining intersection points
Figure 5. Process of determining the altimetry of the alignment
Parametric bridge representation
Box-girder superstructure
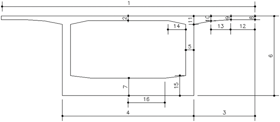
In this research, box-girder bridges are used as reference examples for developing and testing the proposed parametric workflow. The bridge cross-section is defined parametrically, as illustrated in Fig. 6, and connected to an Excel file, presented in Table 2, which serves as a centralized data source for all key geometric parameters. This file stores values such as cross-section dimensions and their longitudinal variation along the bridge span. The database is derived from as-built documentation. By linking Excel to Grasshopper, any modification made in the spreadsheet is automatically updated in the three-dimensional (3D) model, enabling real-time visualization and rapid design iteration.
Figure 6. Parametric cross-section definition using the Excel input template
| Section N° | S01 | S02 | S03 | S04 | S05 | – |
|---|---|---|---|---|---|---|
| Relative distance | 0 | 1 | 1.5 | 1.5 | 3 | m |
| Wtop [1] | 14.3 | 14.3 | 14.3 | 14.3 | 14.3 | m |
| ttop [2] | 0.26 | 0.26 | 0.26 | 0.26 | 0.26 | m |
| Lcant [3] | 3.45 | 3.45 | 3.45 | 3.45 | 3.45 | m |
| Winf [4] | 7.4 | 7.4 | 7.4 | 7.4 | 7.4 | m |
| tw [5] | 0.45 | 0.45 | 0.45 | 0.45 | 0.45 | m |
| H [6] | 2.45 | 2.45 | 2.46 | 2.48 | 2.52 | m |
| tbot1 [7] | 0.35 | 0.35 | 0.36 | 0.38 | 0.4 | m |
| tcant1 [8] | 0.2 | 0.2 | 0.2 | 0.2 | 0.2 | m |
| tcant2 [9] | 0.2 | 0.2 | 0.2 | 0.2 | 0.2 | m |
| tcant3 [10] | 0.3 | 0.3 | 0.3 | 0.3 | 0.3 | m |
| tcant4 [11] | 0.7 | 0.7 | 0.7 | 0.7 | 0.7 | m |
| lcant1 [12] | 1.5 | 1.5 | 1.5 | 1.5 | 1.5 | m |
| lcant2 [13] | 1 | 1 | 1 | 1 | 1 | m |
| lint,top [14] | 1.2 | 1.2 | 1.2 | 1.2 | 1.2 | m |
| tbot2 [15] | 0.5 | 0.5 | 0.51 | 0.53 | 0.55 | m |
| lint,top [16] | 2.2 | 2.2 | 2.2 | 2.2 | 2.2 | m |
The integration between Excel and Grasshopper ensures accuracy, consistency, and efficiency throughout the modeling process. Excel provides a clear and organized structure for data input, while Grasshopper dynamically extracts and applies the information during model generation. This approach significantly reduces manual input, minimizes the potential for human error, and allows designers to quickly evaluate design alternatives, making the workflow both flexible and highly scalable.
At each section, the indexed control points are computed from spreadsheet parameters. The cross-section is then generated using scripted geometric rules, and the 3D solid is finally created by sweeping all sections along the alignment, as shown in Fig. 7. Any change in section dimensions or station distribution regenerates the geometry.
Figure 7. Left: Cross-section represented through indexed control points. Right: Automated extraction of longitudinal and transverse slopes from bridge geometry derived from point-cloud data
Substructure
For the substructure components, the algorithm computes the pier and foundation positions based on the user-specified parameters. The resulting automated placement procedure is shown in Fig. 8.
Figure 8. Placement of pier locations from parametric input data
In cases where point-cloud data or DTMs are accessible, the algorithm evaluates the ground surface to determine the required pier heights and automatically places the foundations at the correct elevation, as presented in Fig. 9.
Figure 9. Pier height determination from terrain surface
Prestressing cable representation
The prestressing cables are subsequently generated within the BIM environment, ensuring accurate representation of their position and alignment, as illustrated in Fig. 10.
Figure 10. Model of prestressing cables
BIM model generation and synchronization
To generate the BIM model, the parametric environment interfaces directly with industry-standard BIM platforms through live-link technologies and plugins, including Rhino.Inside.Revit for Autodesk. These connections enable bi-directional communication, allowing geometric and parameter updates defined within Grasshopper to be reflected instantly within the BIM software. Consequently, model development and modification are carried out entirely within the parametric environment, while Revit automatically updates the corresponding BIM representation without manual re-entry of geometry or data.
This workflow provides full flexibility in model delivery, as designers can select Revit according to project needs while maintaining a single parametric source of truth. In practice, the box-girder bridge module is primarily executed within Revit, taking advantage of adaptive family components to efficiently capture complex section profiles and structural behavior.
Bridge deck BIM model
For the box-girder bridge structure shown in Fig. 11, a Revit adaptive family is utilized to model the cross-section based on a set of indexed points. The family is driven by a series of parametric control points that correspond directly to those generated in Grasshopper, ensuring full geometric alignment between both environments. In Grasshopper, these points are computed from the Excel-based parameter dataset, while the adaptive family in Revit interprets the same point information to generate the model, maintaining a consistent and coordinated geometry across platforms.
Figure 11. Adaptive family
Additional elements, such as the deck slab and curb components, as illustrated in Fig. 12 are likewise generated using adaptive families linked to the parametric algorithm. This approach enables the creation of complex, continuously varying geometries and allows the system to flexibly adapt to any cross-sectional configuration defined by the parameters. Once the geometry is established, the model updates propagate automatically: changes applied in the Excel file feed into Grasshopper and subsequently update the BIM model in Revit. This creates a responsive, integrated workflow that substantially improves modeling efficiency, reduces manual intervention, and ensures reliable information synchronization throughout the design process.
Figure 12. Adaptive family elements of a box-girder bridge
Furthermore, the algorithm is designed to manage special cross-section conditions. This includes reinforced areas, manhole openings, prestressing duct openings, and Gerber joint details, all of which can be parametrically generated, as demonstrated in Fig. 13.
Figure 13. BIM model of reinforced sections, manholes, prestressing duct openings, and Gerber joints. BIM, building information model
Substructure BIM model
After defining the bridge geometry, the substructure components are generated through an automated parametric routine, as shown in Fig. 14. The algorithm first reads the Excel dataset containing the pier and abutment locations, using this information to accurately position each element along the alignment. In addition to coordinates, the spreadsheet also stores key geometric attributes such as pier height, foundation thickness, and other dimensional variables, allowing these elements to be fully controlled and updated parametrically.
Figure 14. BIM representation of the superstructure and substructure. BIM, building information model
Based on this input, the script automatically selects the appropriate adaptive family from a dedicated library and places it in the correct location. Each substructure element is then adjusted dynamically, with its height, orientation, and elevation modified to integrate seamlessly with the superstructure and terrain conditions. Support components, including bridge bearings, are subsequently introduced at the interfaces to ensure correct structural behavior and geometric continuity. This automated process maintains consistency across the model and eliminates manual intervention, ensuring accurate and efficient substructure generation.
Degree of automation and user inputs
The proposed framework operates under a controlled semi-automated strategy, where computational efficiency is combined with necessary engineering supervision. As summarized in Table 3, section generation, BIM synchronization, and spreadsheet-driven parameter updates are fully automated once the input parameters are verified. These operations execute without further user intervention and ensure consistent regeneration of geometry when design variables are modified.
| Process stage | Manual | Automated |
|---|---|---|
| Adaptive families | ✔ | |
| Section generation | ✔ | |
| BIM synchronization | ✔ | |
| Excel Compilation | ✔ |
User-Friendly Interface
To ensure the workflow can be easily adopted by different practitioners, a dedicated user interface was implemented using the Human UI plug-in for Grasshopper, as illustrated in Fig. 15. The interface guides the user through the required inputs, enabling them to define the necessary parameters and, where available, import point-cloud data and alignment curves. Once the inputs are provided, the system automatically generates bridge geometry and presents a real-time visual preview, allowing the user to verify the configuration before sending the information to the BIM platform.
Figure 15. User-friendly interface
Beyond simplifying interaction, the interface also automates coordinate handling. The algorithm determines the bridge’s spatial location and assigns the corresponding coordinates, as shown in Fig. 16, ensuring that the resulting BIM model is correctly positioned and georeferenced. This integrated setup streamlines the modeling process, reduces manual steps, and makes the parametric framework accessible even to users without advanced Grasshopper skills.
Figure 16. Georeferencing definition
Workflow Diagram
Fig. 17 illustrates the overall parametric scan-to-BIM workflow proposed in this study. The process begins with raw drone-based photogrammetric point-cloud data and proceeds through structured preprocessing, geometric filtering, alignment and slope extraction, station-based parametric reconstruction, and BIM object generation. Each stage produces clearly defined outputs that serve as inputs for the subsequent step.
Figure 17. Workflow diagram. BIM (Building Information Modeling), LOD (Level of Development), DTM (Digital Terrain Model)
The workflow is designed to maintain a continuous digital thread, ensuring that geometric parameters extracted from the point cloud are directly linked to the spreadsheet-based parameter database and subsequently propagated to the BIM environment through live synchronization. Manual intervention is limited to alignment verification and parameter validation, while geometric reconstruction and BIM generation are executed automatically once inputs are confirmed.
Case Study and Validation
The following three case studies are presented to illustrate and validate the proposed workflow.
Case study description
(i) Bridge 1
To validate the proposed framework, a prestressed concrete box-girder bridge was selected as a representative case study (see Fig. 18). The structure has a total length of 690.21 m and consists of an eleven-span continuous configuration defined as
Figure 18. Bridge 1 longitudinal and plan view
The bridge is supported by ten intermediate piers and two abutments. The deck width is 17.05 m, and the alignment follows a horizontal curvature along the longitudinal axis. The bridge presents variable cross-sectional geometry and multi-span continuity, representing the geometric complexity typically encountered in existing infrastructure.
The selected bridge was considered suitable for validation due to: its curved longitudinal alignment; variable span lengths; multi-span continuous configuration; presence of prestressing tendons; terrain-dependent pier elevations.
These characteristics provide a rigorous test of the robustness, flexibility, and scalability of the proposed parametric scan-to-BIM framework.
(ii) Bridge 2
Bridge 2 is a prestressed concrete box-girder bridge (see Fig. 19) with a total length of 320.3 m, consisting of a six-span continuous configuration defined as
Figure 19. Bridge 2 longitudinal and plan view
The bridge comprises four intermediate piers and two abutments. Compared to Bridge 1, Bridge 2 features a shorter overall length and reduced span variability, while maintaining a curved longitudinal alignment.
The geometric configuration includes: continuous multi-span behavior; moderate longitudinal curvature; variable pier heights; terrain-dependent substructure placement;
Bridge 2 was included to evaluate the robustness of the proposed framework under reduced scale and different span distribution while maintaining similar typology.
(iii) Bridge 3
Bridge 3 is a prestressed concrete box-girder bridge (see Fig. 20) with a total length of 301.95 m, consisting of a six-span continuous configuration defined as
Figure 20. Bridge 3 longitudinal and plan view
The bridge comprises five intermediate piers and two abutments. Compared to Bridge 2, Bridge 3 features shorter end spans combined with relatively uniform interior spans, introducing geometric transitions at span boundaries.
The superstructure was generated using parametric cross-sections distributed along the alignment. The bridge includes: continuous multi-span configuration; moderate horizontal curvature; variable pier heights; terrain-dependent substructure placement;
Bridge 3 was incorporated to evaluate the robustness of the proposed framework under asymmetric span arrangements and varying span transitions. A comparison of all geometric accuracy results is presented in Table 4.
| Metric | Bridge 1 | Bridge 2 | Bridge 3 |
|---|---|---|---|
| Length (m) | 690.21 | 306.15 | 301.95 |
| Number of sections | 286 | 119 | 93 |
| Number of spans | 11 | 5 | 6 |
| Mean (mm) | 8.9 | 1.6 | 5.83 |
| Std Dev (mm) | 10.4 | 6.11 | 6.35 |
| RMS (mm) | 13.7 | 6.32 | 8.63 |
| 95% percentile (mm) | 22.7 | 13.57 | 18.31 |
| 99% percentile (mm) | 35.7 | 17.35 | 22.2 |
Geometric accuracy assessment
The geometric fidelity of the reconstructed BIM models was evaluated through a cloud-to-model distance analysis. The segmented and filtered point-cloud served as the geometric reference, and point-to-surface distances were computed using nearest-surface projection between the measured data and the corresponding parametric BIM surfaces.
For each point in the segmented dataset, the shortest Euclidean distance to the reconstructed surface was calculated. The following statistical indicators were derived to quantify global geometric agreement: mean absolute deviation; standard deviation; root mean square (RMS) deviation; 95th percentile deviation; 99th percentile deviation.
CloudCompare does not directly show RMS, but it can compute it from
The distributions of the computed deviations are illustrated in Fig. 21, which presents the histograms of cloud-to-model distances of the three case studies.
Figure 21. Histogram graphs
The global results for the superstructure are summarized as follows:
These results indicate that the reconstructed BIM geometries achieve consistent centimetre-level agreement with the as-built structure. Ninety-five percent of the evaluated points remain within approximately 23 mm of the modeled surfaces, confirming high geometric reliability of the parametric reconstruction workflow.
Component-level accuracy
To provide localized validation, the deviation analysis was performed separately for key structural components, including the deck slab, webs, bottom flange, parapets, and joint regions. Regions were isolated using the same segmentation logic described in Section 3. This component-wise assessment confirmed that deviations are primarily localized near geometrically complex or partially occluded areas, while primary load-bearing elements exhibit lower dispersion.
Spatial distribution of deviations
Color-coded deviation heatmaps were generated to visualize the spatial distribution of discrepancies across the superstructure. The largest deviations were observed near: parapet edges; complex joint regions (e.g., Gerber areas); partially occluded surfaces and boundary transitions.
No systematic alignment drift was observed along the longitudinal axis of the bridges, confirming the robustness of the regression-based alignment and altimetry extraction procedure. The absence of global bias and the limited concentration of high deviations further demonstrate the stability and reliability of the proposed semi-automated reconstruction framework.
Efficiency evaluation
A comparative time study was carried out to assess modeling efficiency with respect to a conventional manual Revit workflow. In the traditional approach, modeling relies on manual interpretation of geometry, drafting of cross-sections, sweep operations, pier placement, and iterative parameter adjustments. By contrast, the proposed parametric workflow automatically generates the full geometry once the alignment and input parameters are validated. As shown in Fig. 22, the resulting time savings are quantified as follows: Traditional modeling time: 1–2 months Parametric proposal workflow time: 1–2 weeks Productivity improvement: more than 75%
Figure 22. Efficiency evaluation graph
Discussion of results
First, geometric deviation increases moderately with structural scale and complexity. Bridge 1, characterized by an 11-span curved alignment and 286 parametric sections, exhibited the highest RMS value (13.7 mm). In contrast, Bridge 2 (5 spans, 306.15 m) achieved the lowest RMS value (6.32 mm), indicating improved stability under reduced structural extent and simpler span configuration.
Second, asymmetric span layouts and variable pier elevations, as introduced in Bridge 2 and Bridge 3, did not introduce instability or significant error amplification. Even in Bridge 3, which includes short end spans and span-length transitions, the RMS deviation remained below 9 mm, confirming that the parametric workflow effectively handles span discontinuities and geometric transitions.
Third, deviation magnitudes across all three bridges remain within centimeter-level tolerance, which is generally acceptable for scan-to-model reconstruction workflows in bridge engineering applications.
Overall, the consistency of deviation statistics across bridges of different lengths (301.95–690.21 m), span arrangements (5–11 spans), and geometric complexity confirms the scalability and robustness of the proposed framework. The method demonstrates stable performance without evidence of cumulative geometric drift, supporting its applicability to real-world multi-span bridge modeling scenarios. The spatial distribution of deviations for Bridges 1 and 2 is illustrated in Fig. 23. Similarly, the deviation distribution for Bridge 3 is shown in Fig. 24.
Figure 23. Heatmap deviation graph (top: Bridge 1, bottom: Bridge 2)
Figure 24. Heatmap deviation graph (Bridge 3)
Interoperability and Practical Deployment
BIM deliverables and parameter integrity
The framework maintains parameter consistency between the parametric modeling environment and the BIM platform through Rhino.Inside.Revit, which enables live synchronization of geometry from Grasshopper to Autodesk Revit. Unlike static file exports, this workflow preserves a centralized parameter structure, where dimensional and positional data stored in the spreadsheet database govern the entire model generation process.
Within Revit, the bridge geometry is instantiated using adaptive family components driven by indexed control points generated in Grasshopper. These points define section frames, profile curves, and solid boundaries. Because the BIM elements are derived directly from the parametric outputs, geometric alignment between environments is preserved without manual redrawing.
Parameter integrity is maintained through a “single parametric source of truth”: all dimensional values and station definitions originate in the spreadsheet database. When parameters are modified, the geometry is regenerated in Grasshopper and can be synchronized to Revit, eliminating manual re-entry and reducing risk of inconsistency. Once transferred, BIM elements remain editable within Revit for annotation, scheduling, and documentation purposes.
Interoperability and IFC-based validation
To evaluate interoperability and suitability for downstream asset management workflows, the generated BIM models were exported to IFC format using the native Revit IFC exporter and validated in Trimble Connect.
The exported bridge components were correctly mapped to IFC entities. For example: superstructure sections were exported as IfcSlab; substructure components were exported as IfcColumn/IfcFooting; unique IFC GUIDs were preserved; object-level metadata was retained.
The exported geometries were verified to remain solid and measurable. Figs. 25 and 26 show the IFC representation of the box-girder cross-section as visualized in Trimble Connect.
Figure 25. IFC section representation. IFC, Industry Foundation Class
Figure 26. IFC bridge representation. IFC, Industry Foundation Class
Quantity take-off (QTO) suitability
To assess model suitability for quantity take-off (QTO): volume values were automatically computed in the IFC viewer; surface areas were preserved; center-of-gravity coordinates were retained; bounding box dimensions were accessible.
For example, the exported superstructure segment reported: Volume: 29.57 m3 Area: 175.08 m2
These values correspond to the BIM-calculated properties, confirming that geometric and parametric integrity is maintained during export, as illustrated in Fig. 27.
Figure 27. IFC Geometry properties. IFC, Industry Foundation Class
IFC and OpenBIM considerations
The current implementation prioritizes live integration with Autodesk Revit due to its widespread adoption in bridge engineering practice. However, interoperability remains an important consideration for long-term infrastructure management.
While Revit-based adaptive families enable flexible representation of variable cross-sections and complex elements (e.g., Gerber joints), these components are platform-specific. Export to IFC is feasible through standard Revit export routines; however, certain parametric behaviors may be simplified during translation.
The emerging IFC 4.3 schema introduces bridge-specific entities (e.g., alignment, span, and structural members), which provide a promising direction for future extension of the framework. Mapping parametric section definitions and station-based geometry to IFC 4.3 entities would enhance vendor-neutral interoperability and facilitate integration into asset management systems.
Future development should therefore focus on: formal mapping between parametric section frames and IFC alignment entities; preservation of parameter relationships during export; validation of IFC deliverables for infrastructure-specific use cases.
Discussion
The successful export and validation demonstrate that the proposed workflow supports: vendor-neutral data exchange; asset management integration; downstream quantity estimation; lifecycle documentation.
Future developments will focus on explicit mapping to IFC 4.3 bridge-specific entities to further enhance semantic interoperability.
Conclusions and Future Work
Conclusion
This work introduces an automated parametric framework developed in Grasshopper for the generation of detailed 3D bridge models with direct interoperability to Revit. The approach streamlines the creation and management of complex bridge geometries, offering an efficient alternative to conventional modeling practices that rely heavily on manual processes and disconnected software environments.
Through the automation of geometric definition and the integration of point-cloud-based data processing, the framework significantly improves modeling speed and design adaptability. Engineers are enabled to rapidly test multiple layout configurations, assess geometric behavior, and optimize solutions with minimal manual intervention. The system is supported by an intuitive user interface, ensuring straightforward interaction, consistent parameter control, and coordinated model updates throughout the workflow.
Thanks to its modular and extendable architecture, the methodology is well-positioned to evolve alongside emerging digital engineering technologies and industry workflows. As such, it provides a solid foundation for future enhancements in digital bridge design, condition assessment, and rehabilitation planning, promoting greater efficiency and reliability across the lifecycle of bridge projects.
Limitations
Despite the demonstrated performance, some limitations remain: The accuracy of alignment and slope extraction depends on sufficient deck-surface point density and minimal occlusions. Highly complex or irregular geometries may require additional user verification during alignment definition. Current BIM integration relies on platform-specific adaptive families, which may limit direct interoperability in fully OpenBIM environments.
Future work
The future research should focus on: formal mapping of station-based parametric definitions to IFC 4.3 bridge entities to enhance vendor-neutral interoperability; automated statistical deviation reporting integrated directly into the workflow; extension of the methodology to additional bridge typologies (e.g., I-girder, arch, cable-supported systems). integration of inspection data and sensor measurements to strengthen digital twin capabilities.
By addressing these aspects, the framework can evolve toward a more generalized and interoperable infrastructure modeling solution.
Declarations
Funding
This research received no external funding. (or insert funding source if applicable)
Conflict of interest
The authors declare no conflict of interest.
References
Scan-to-BIM-to-Sim: automated reconstruction of digital and simulation models from point clouds with applications on bridges. <i>Res Eng</i>. 2025;25. doi:10.1016/j.rineng.2025.104289
Automated reconstruction of parametric BIM for bridges from point clouds. <i>Adv Civil Eng</i>. 2021;2021.
Procedural point cloud modelling in scan-to-BIM and scan-vs-BIM applications: a review. <i>ISPRS Int J Geo-Informn</i>. 2023;12(7). doi:10.3390/ijgi12070260
Semi-automated creation of IFC bridge models from point clouds for maintenance applications. <i>Front Built Environ</i>. 2024;10. doi:10.3389/fbuil.2024.1375873
Automatic reconstruction of as-built BIM from laser-scanned point clouds: review. <i>Automat Construct</i>. 2010;19(7):829-843. doi:10.1016/j.autcon.2010.06.007
<i>BIM Handbook: A Guide to Building Information Modeling for Owners, Designers, Engineers, Contractors, and Facility Managers</i>. Wiley; 2018.
Bridging building information modeling and parametric design. Published online 2012.
A parametric BIM approach to foster bridge project design and analysis. <i>Automat Construct</i>. 2021;126(3). doi:10.1016/j.autcon.2021.103679
Algorithm-aided design for composite bridges. <i>Buildings</i>. 2023;13(6).
Integration of UAV-Lidar and UAV-photogrammetry for infrastructure monitoring and bridge assessment. <i>Int Arch Photogramm Remote Sens Spat Inform Sci</i>. 2022;XLIII-B2-2022:995-1002. doi:10.5194/isprs-archives-xliii-b2-2022-995-2022
<i>Ecppm 2022-EWork and EBusiness in Architecture, Engineering and Construction 2022</i>. CRC Press; 2023. doi:10.1201/9781003354222-27
Published
How to Cite
Issue
Section
License
Copyright (c) 2026 Adhavan Surendiran, Riccardo Grillo, Valentina Boretti, Mario Balestra, Davide Masera (Author)

This work is licensed under a Creative Commons Attribution-NonCommercial-NoDerivatives 4.0 International License.
© Authors under CC Attribution-NonCommercial-NoDerivatives 4.0.
